阳山县阳英新能源科技有限公司申请变更建设工程规划报批手续批前公示
我局收到阳山县阳英新能源科技有限公司提出的变更建设工程规划报批手续申请及相关材料。现根据《中华人民共和国城乡规划法》、《广东省城乡规划条例》的有关规定,对该项目进行批前公示。
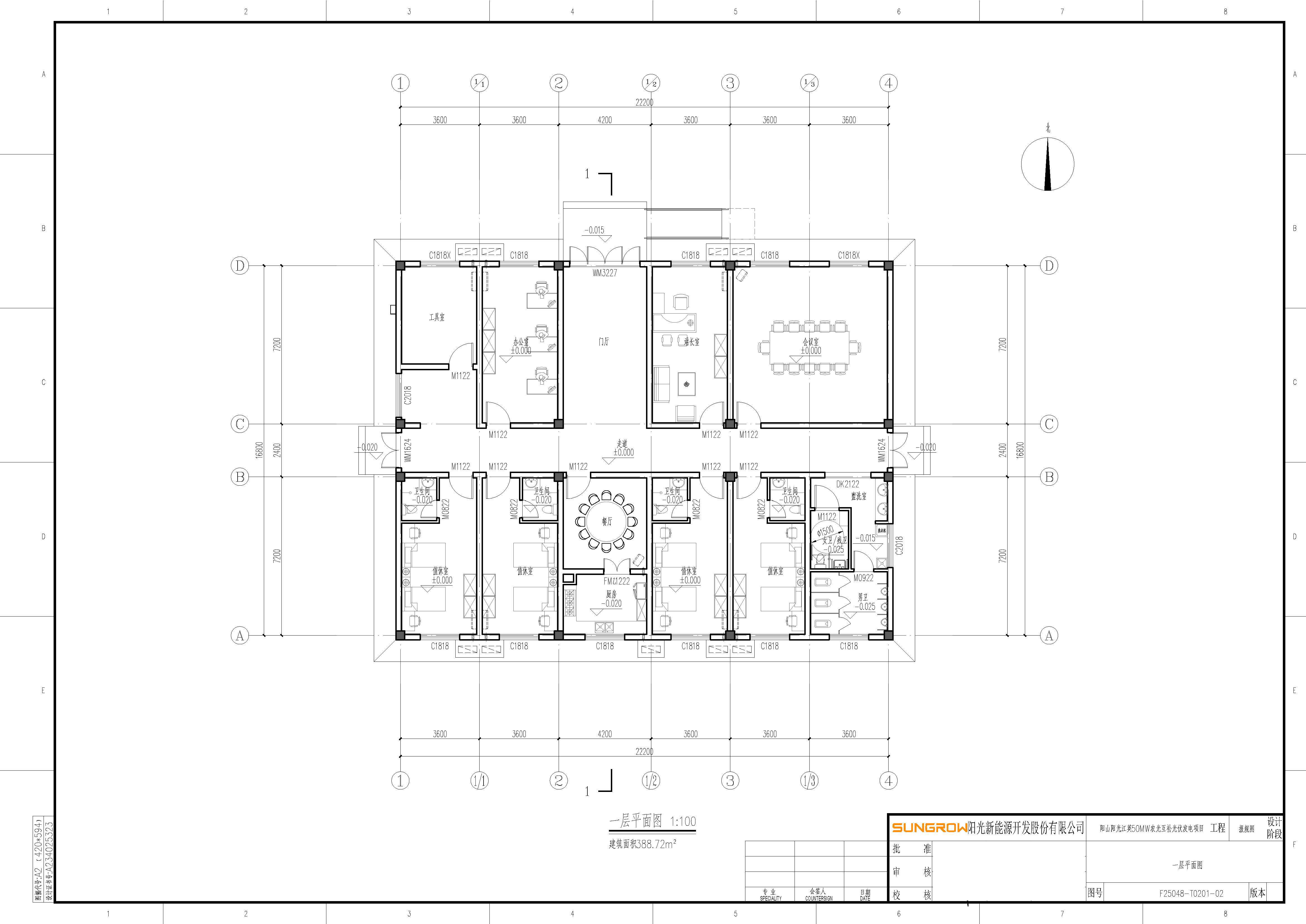
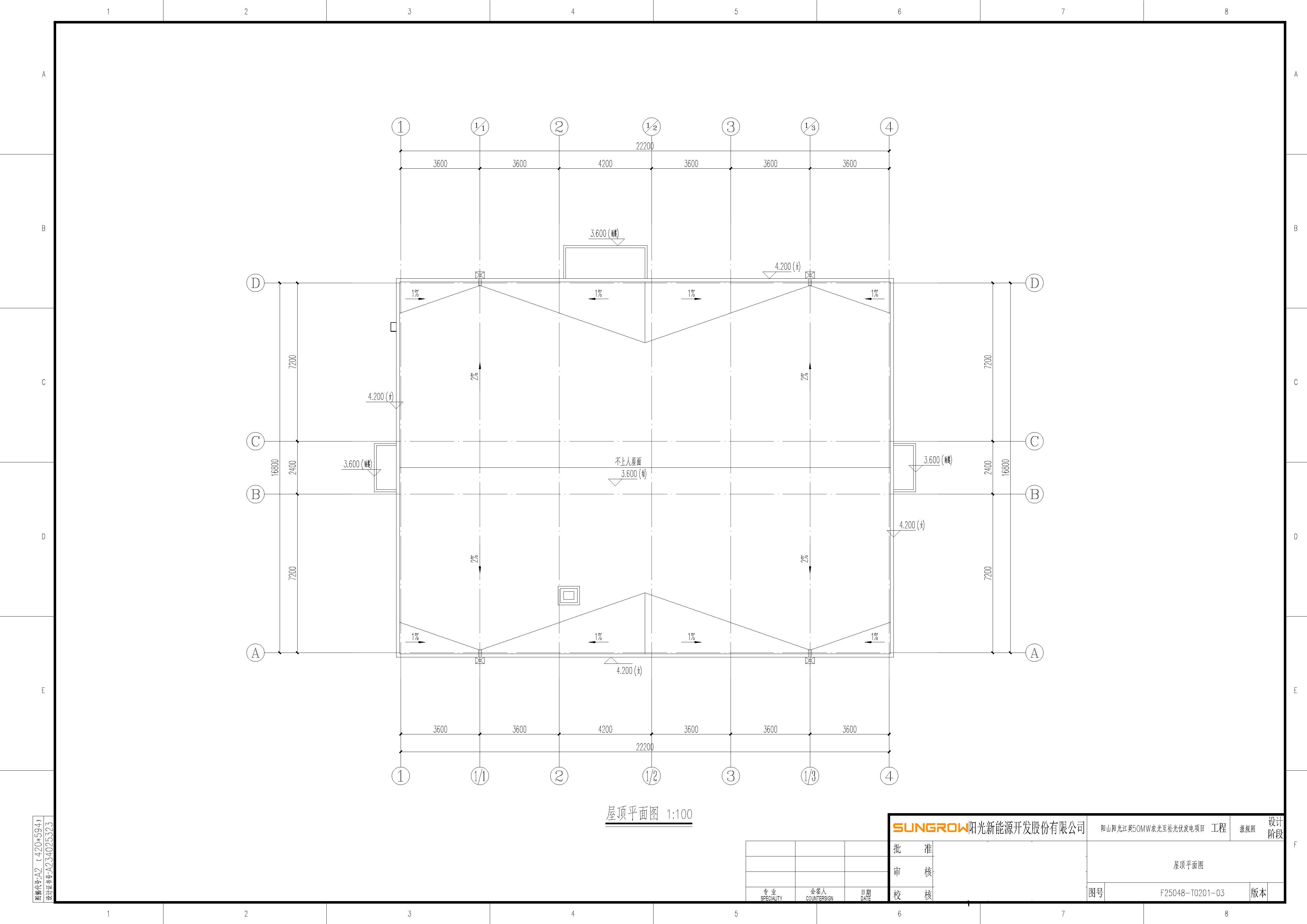
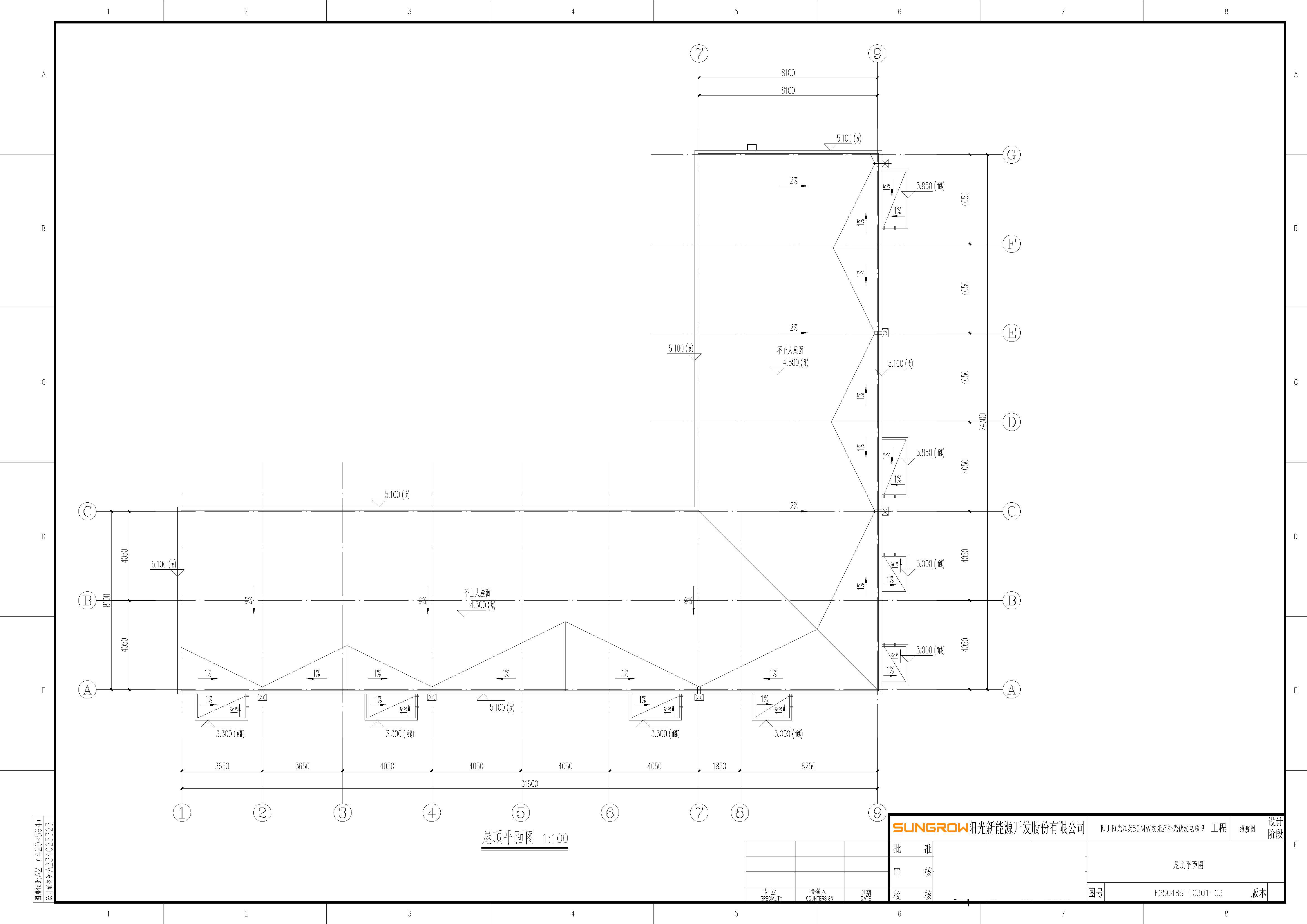
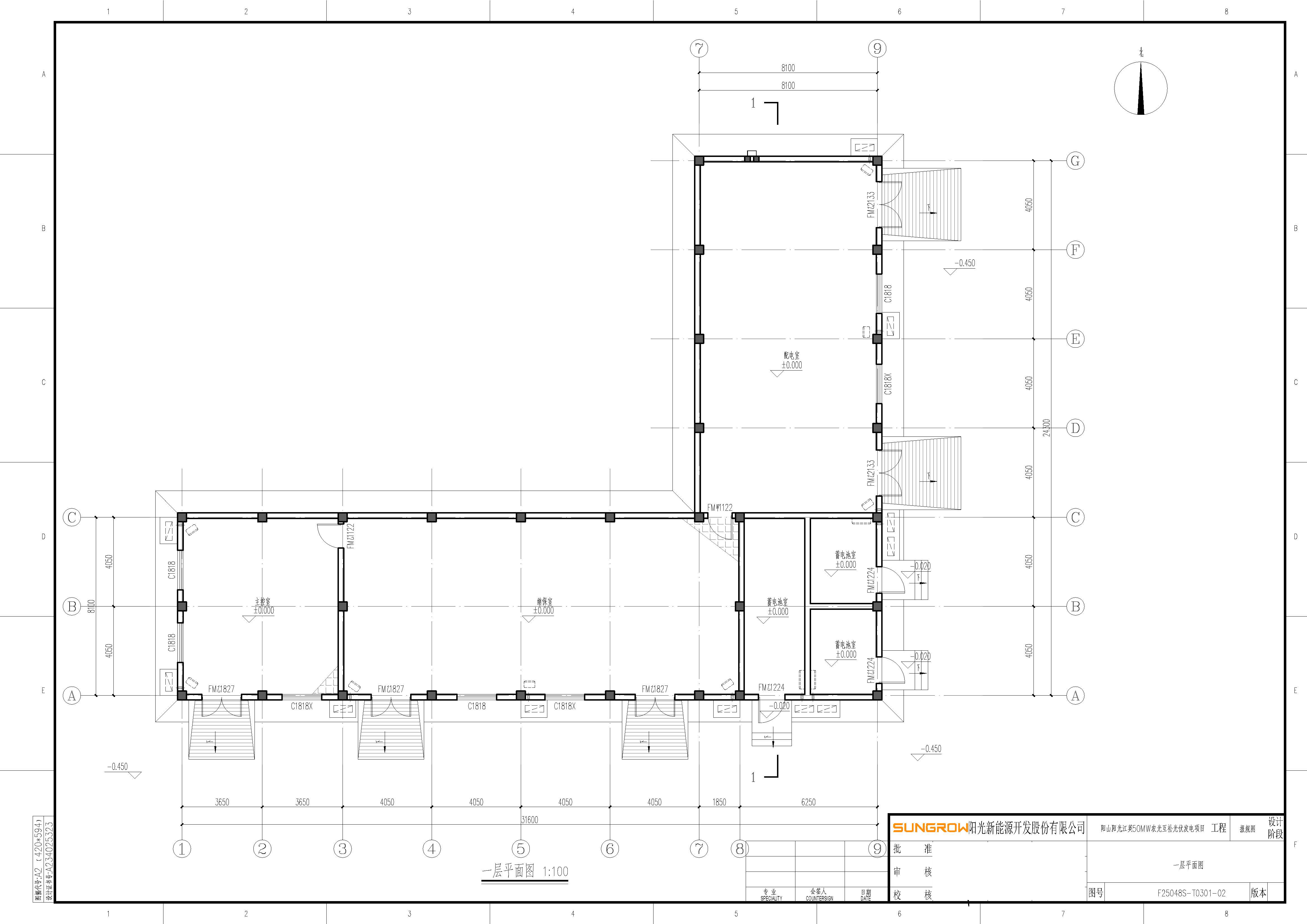
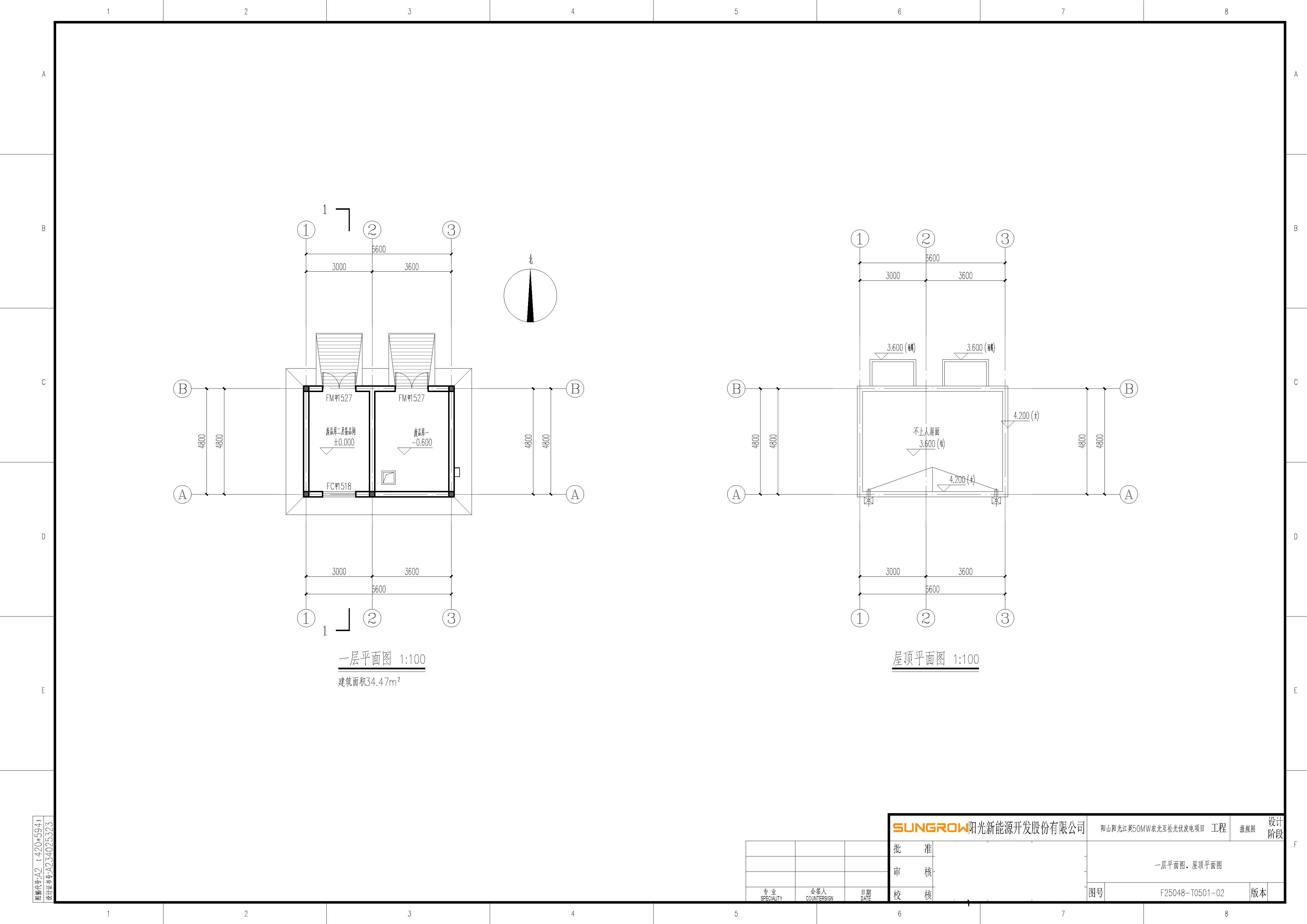
一、项目位置及项目概况(报来方案):该建设用地位于阳山县江英镇大桥村,用地性质公用设施用地,用地面积为8680.94平方米。拟建一栋地上均1层的综合楼、辅助用房、配电用房,总建筑面积832.89平方米,总基底面积832.89平方米,项目名称由“综合楼、辅助用房、配电用房”调整为“阳山阳光江英50MW农光互补光伏发电项目”,其余不变(详见附图)。
二、项目内容:阳山阳光江英50MW农光互补光伏发电项目
三、公示时间:2026年1月22日至2026年1月31日
四、公示方式和地点:
1.建设现场;
2.阳山县政府门户网(http://www.yangshan.gov.cn)。
五、意见及反馈:
1.公示期间,凡对以上内容有异议的,可通过书面形式进行反馈;
2.有效的反馈意见,必须包括提出异议的理由、反馈者的真实姓名、有效联系方式、身份证复印件(个人则提供身份证复印件,单位则提供法定代表人身份证复印件,委托代理人则提供委托代理人身份证复印件),利害关系人必须提供相关证明材料(如国土证、房产证或销售合同等),有效的反馈意见,将作为行政许可的参考;
3.利害关系人有申请听证的权利,如需申请听证,请于公示期间向我局听证机构提出书面申请,逾期提出的,视为放弃以上权利。
六、联系部门及电话:
部门地址:清远市阳山县阳城镇北门路362号阳山县自然资源局规划股
邮政编码:513100 咨询电话:0763-7883983
注:本公示为审批前公示,不代表已同意并完成审批。
阳山县自然资源局
2026年1月22日
附图:









扫码关注官方公众号
移动门户