叶国平申请变更设计方案的批前公示
我局收到叶国平提出的变更设计方案申请及相关材料。现根据《中华人民共和国城乡规划法》、《广东省城乡规划条例》的有关规定,对该项目进行批前公示。
一、项目位置及项目概况(报来方案):该建设用地位于阳山县黎埠镇文明街。用地面积730.32平方米,用地性质为住宅兼容商服,具体变更如下:
变更前新建一栋地上4层的商住楼,基底面积614.68平方米,总建筑面积2434.21平方米,其中住宅建筑面积485.59平方米,商业面积1904.74平方米,电梯/楼梯建筑面积43.88平方米,建筑建筑高度18米。
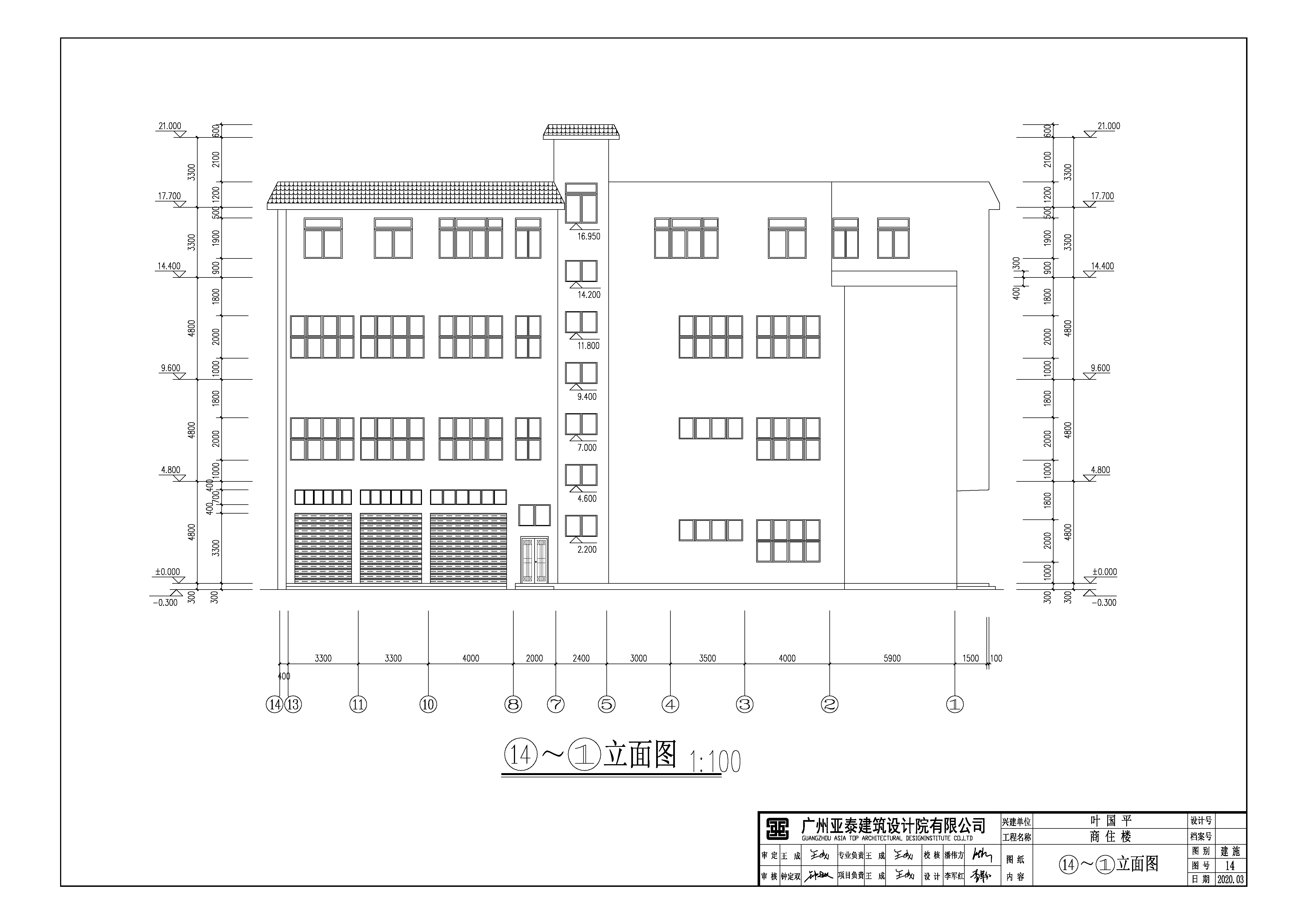
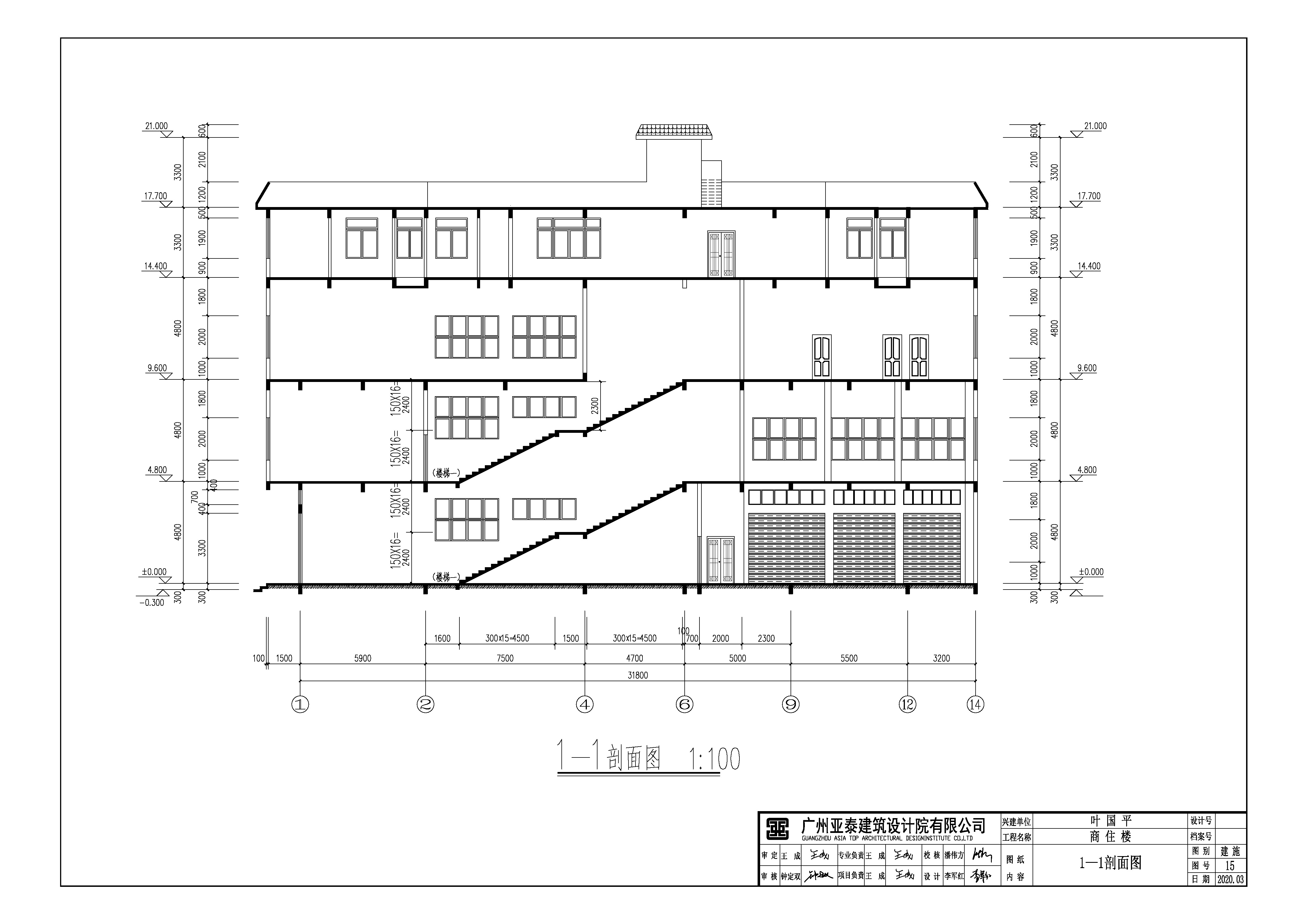
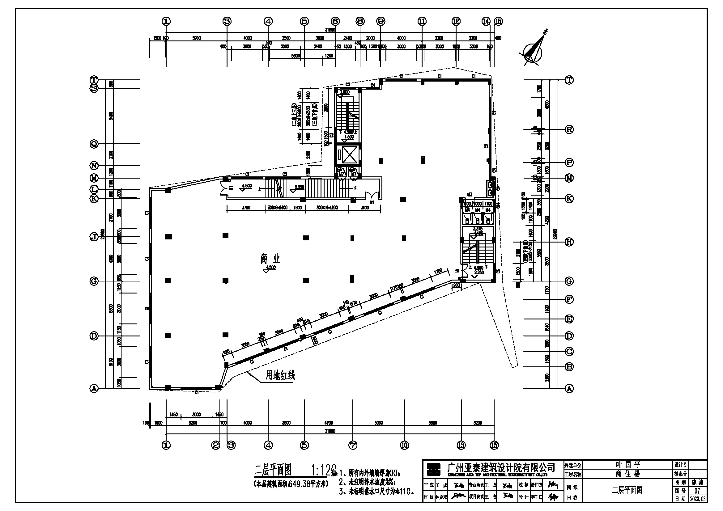
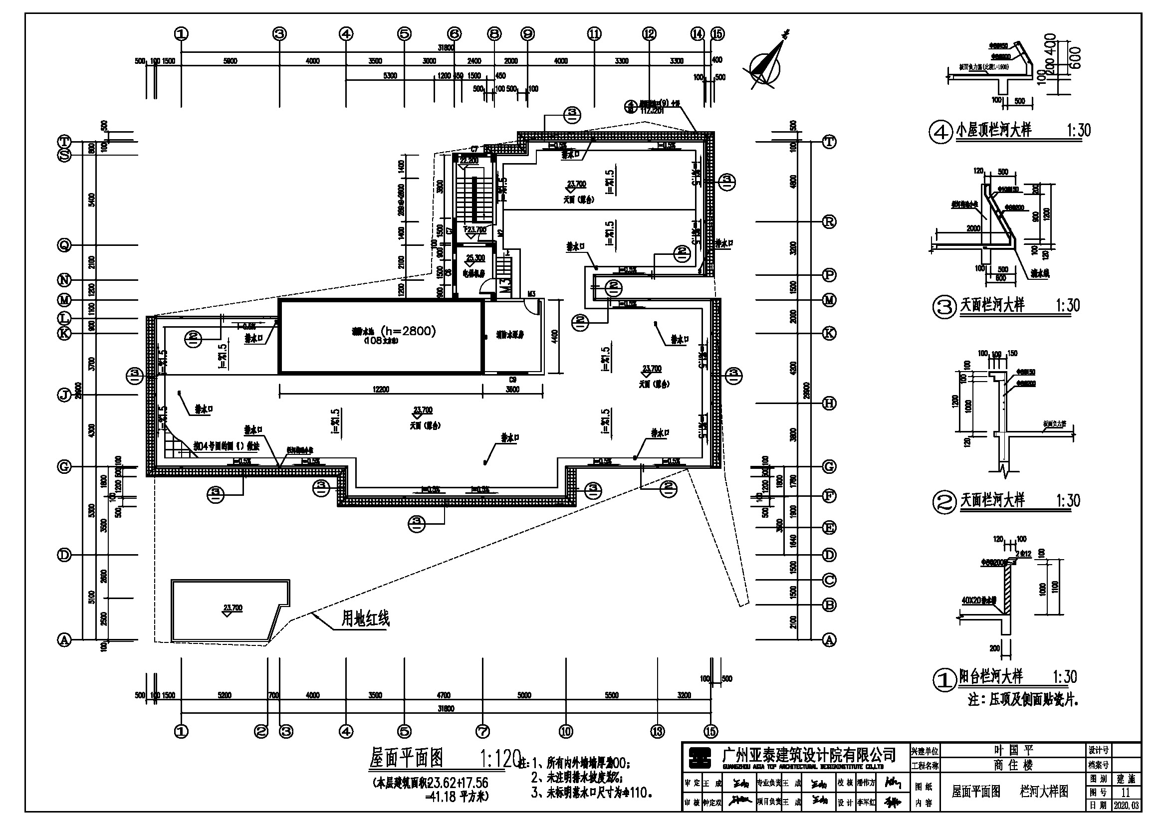
变更后新建一栋地上7层的商住楼,基底面积620.13平方米,总建筑面积4380.83平方米,其中住宅建筑面积2360.45平方米,商业面积1918.89平方米,电梯/楼梯及消防水泵房建筑面积101.49平方米,建筑建筑高度24米。(详见附图)
二、项目内容:叶国平商住楼
三、公示时间:2021年4月26日至2021年5月5日
四、公示方式和地点:
1.建设现场;
2.阳山县政府门户网(http://www.yangshan.gov.cn)。
五、意见及反馈:
1.公示期间,凡对以上内容有异议的,可通过书面形式进行反馈;
2.有效的反馈意见,必须包括提出异议的理由、反馈者的真实姓名、有效联系方式、身份证复印件(个人则提供身份证复印件,单位则提供法人身份证复印件,委托代理人则提供委托代理人身份证复印件),利害关系人必须提供相关证明材料(如国土证、房产证或销售合同等),有效的反馈意见,将作为行政许可的参考;
3.利害关系人有申请听证的权利,如需申请听证,请于公示期间向我局听证机构提出书面申请,逾期提出的,视为放弃以上权利。
六、联系部门及电话:
部门地址:清远市阳山县阳城镇北门路362号阳山县自然资源局规划股
邮政编码:513100 咨询电话:0763-7883983
注:本公示为审批前公示,不代表已同意并完成审批。
阳山县自然资源局
2021年4月26日
附图:

项目位置
变更前:











变更后:














扫码关注官方公众号
移动门户