我局收到阳山县同泰油脂有限公司提出的变更总平图及规划条件核实申请及相关材料。经审查,项目符合要求,我局原则同意批出。现根据《中华人民共和国城乡规划法》、《广东省城乡规划条例》的有关规定,对该项目报批方案进行批后公告。
一、项目位置:阳山县阳城镇城东新区范村路3号,项目总用地面积133485.0平方米;
二、申请内容:
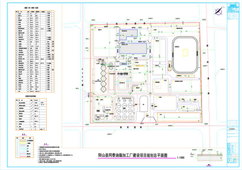
1、该公司因工艺调整,现申请变更总平图(详见附图)。
2、粕品打包车间、宿舍等项目申请补办建筑面积并进行规划条件核实。
三、公示时间:2017年10月11日——2017年10月17日(共7天)
四、公示方式和地点:阳山县政府门户网、阳山县规划市政局内规划公告栏。
五、详细内容可到阳山规划市政局规划股咨询。
咨询电话:7883983
凡对以上内容有意见或者建议的,可在公示有效时间以书面形式向本局提出,并请留下真实姓名及联系方式,逾期提出的,视为放弃上述权利。
阳山县规划市政局
2017年10月11日
变更前总平面图

变更后总平面图
扫码关注官方公众号
移动门户