广东电网有限责任公司清远阳山供电局申请办理建设工程规划报批手续批后公告
我局收到广东电网有限责任公司清远阳山供电局提出的办理建设工程规划报批手续申请及相关材料。经审查,项目符合要求,我局原则同意批出。现根据《中华人民共和国城乡规划法》、《广东省城乡规划条例》的有关规定,对该项目报批方案进行批后公告。
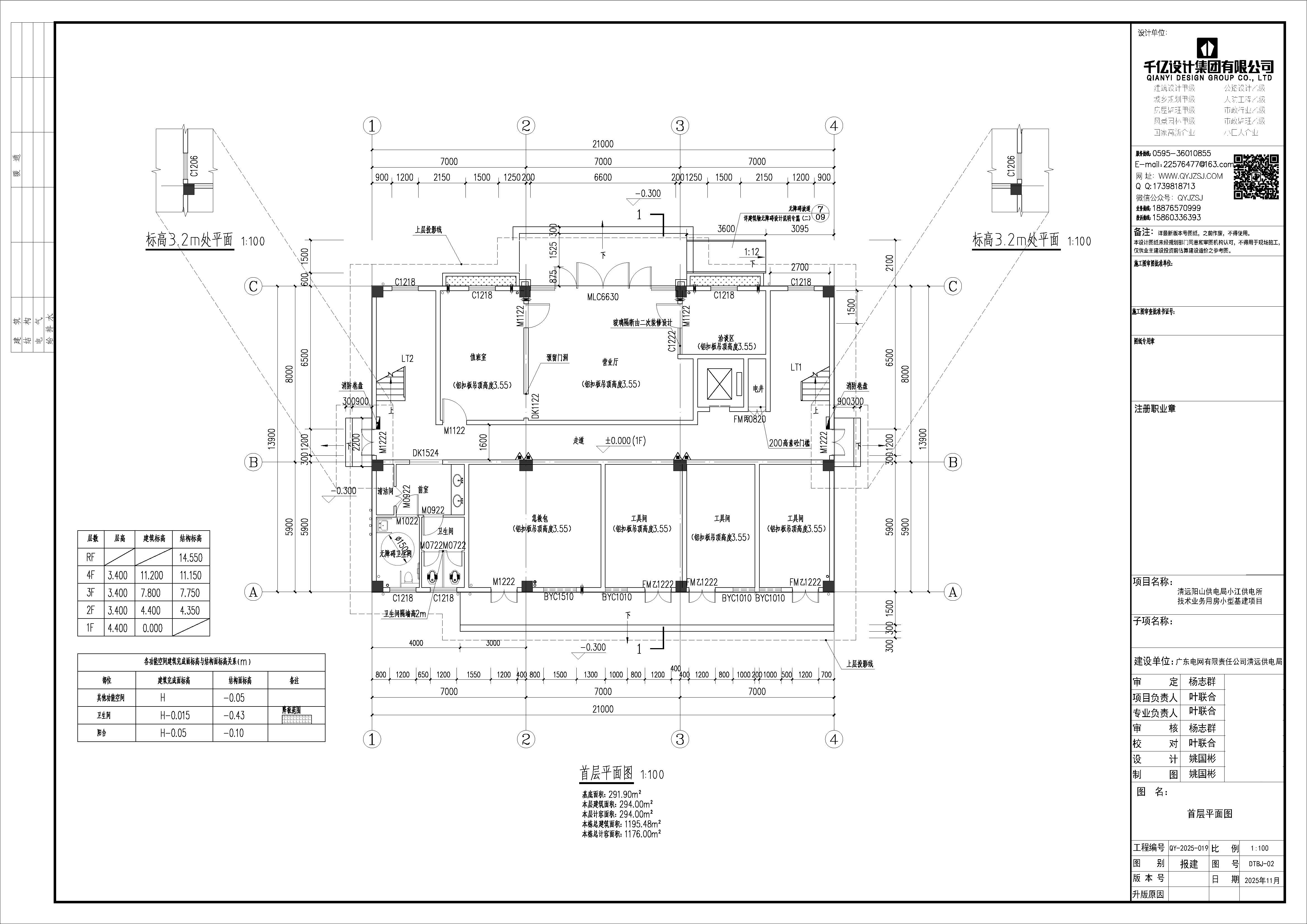
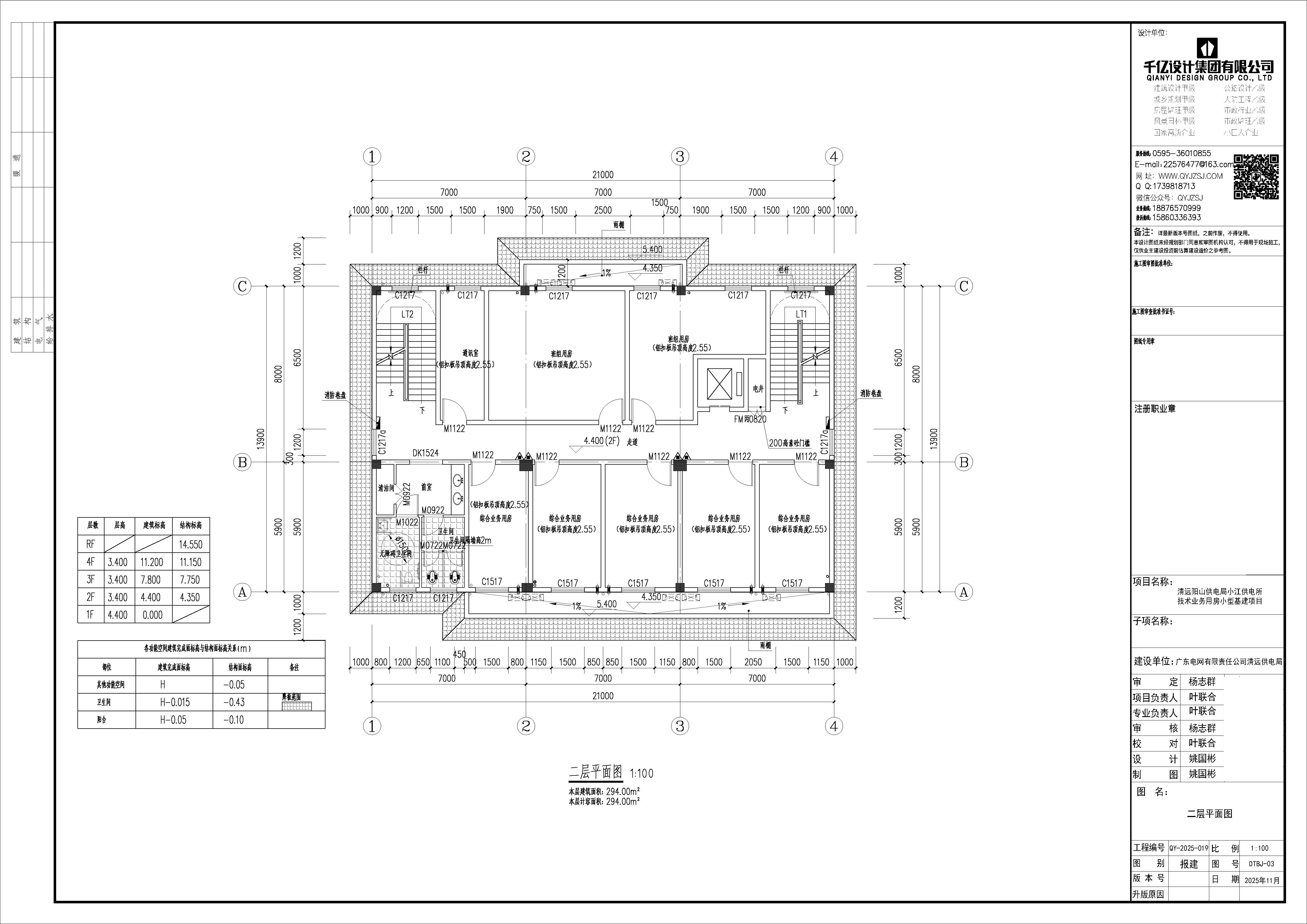
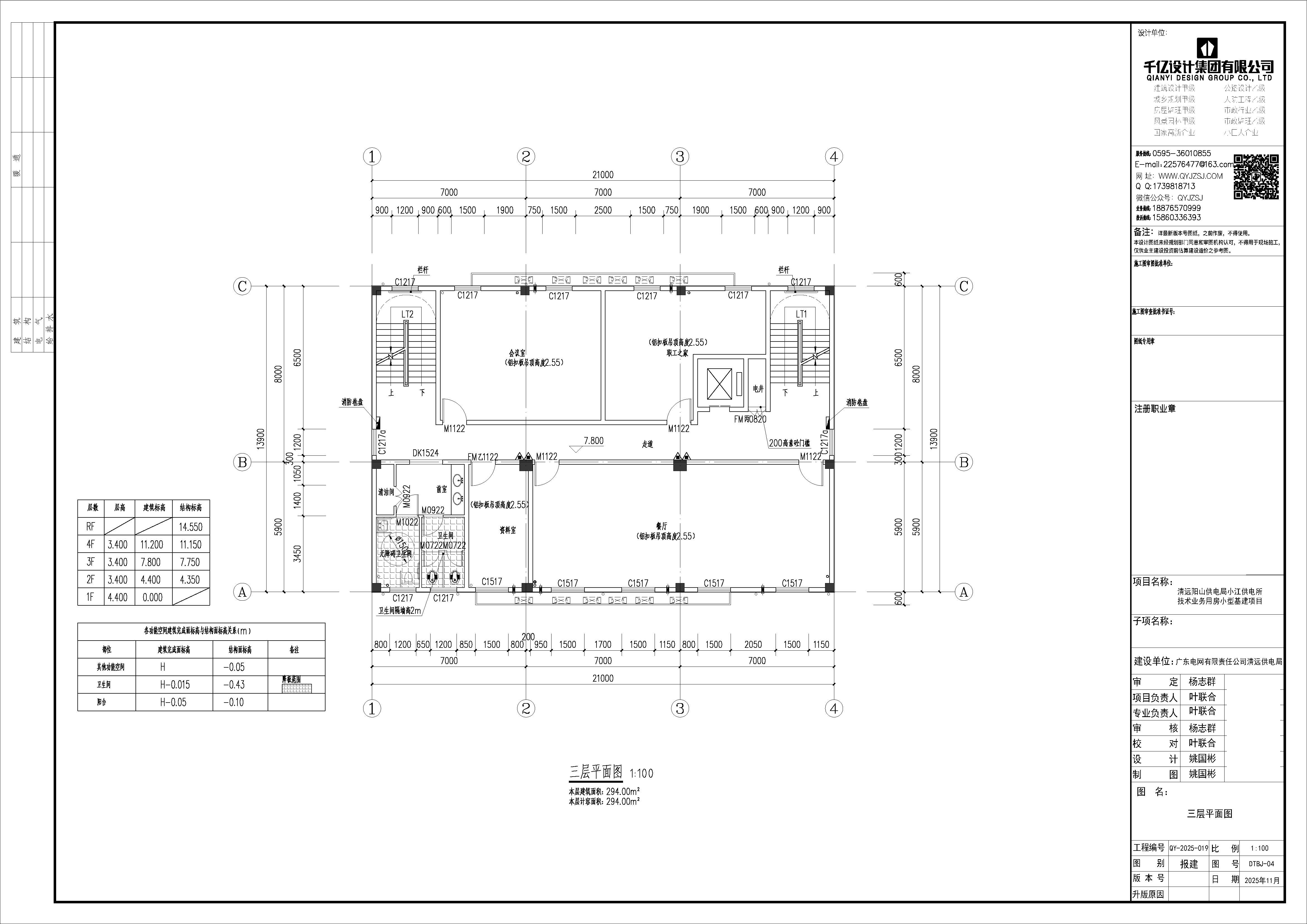
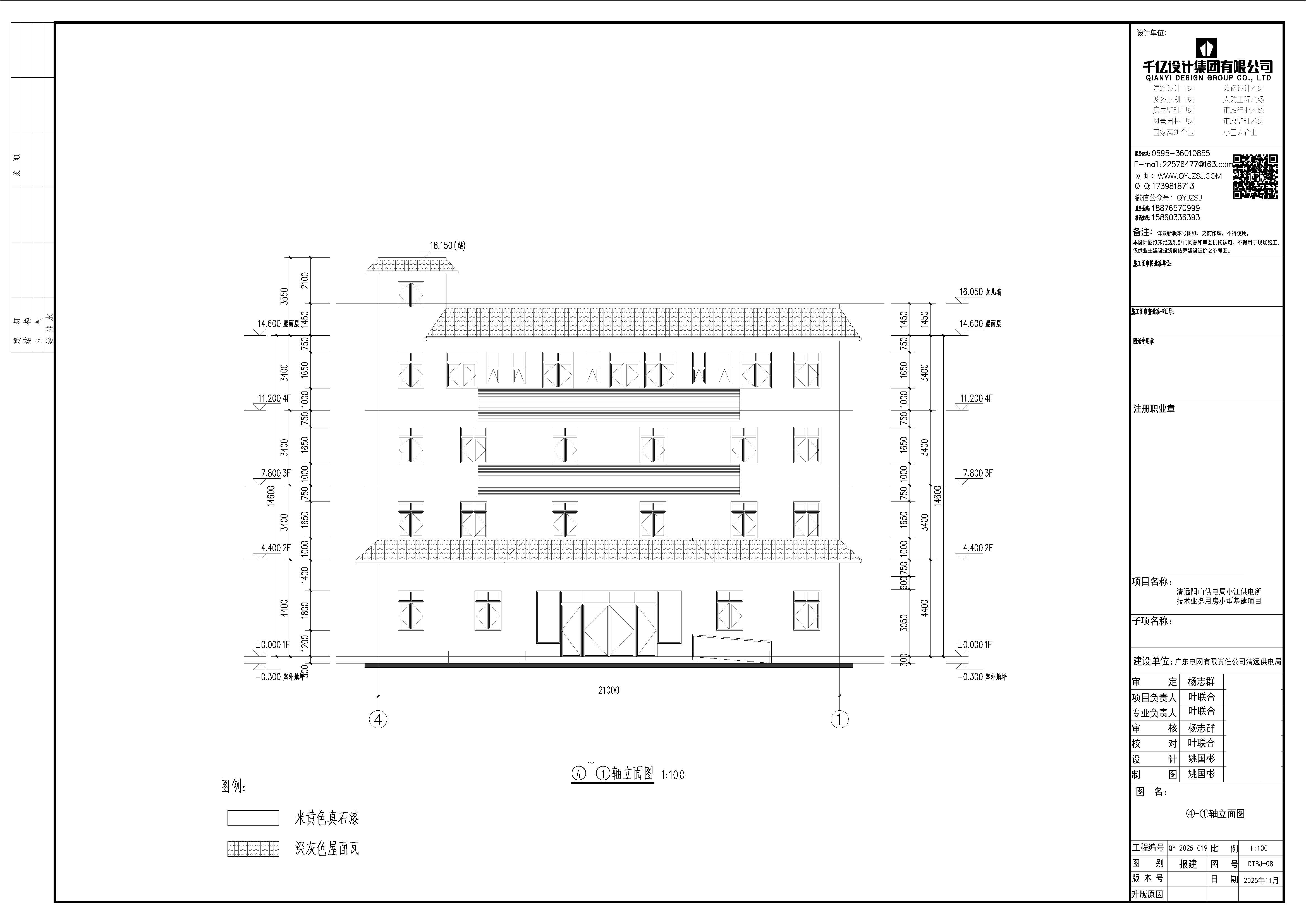
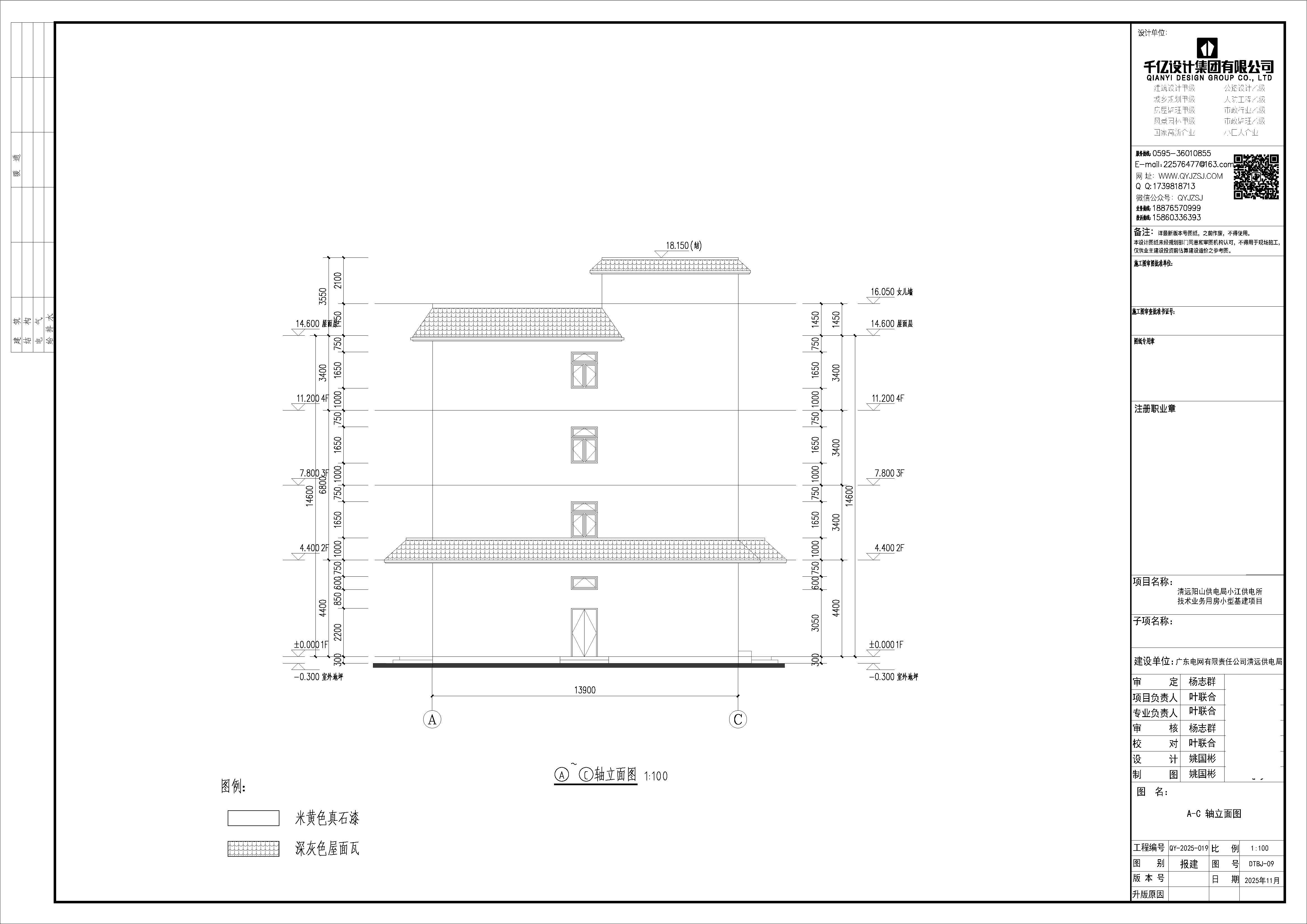
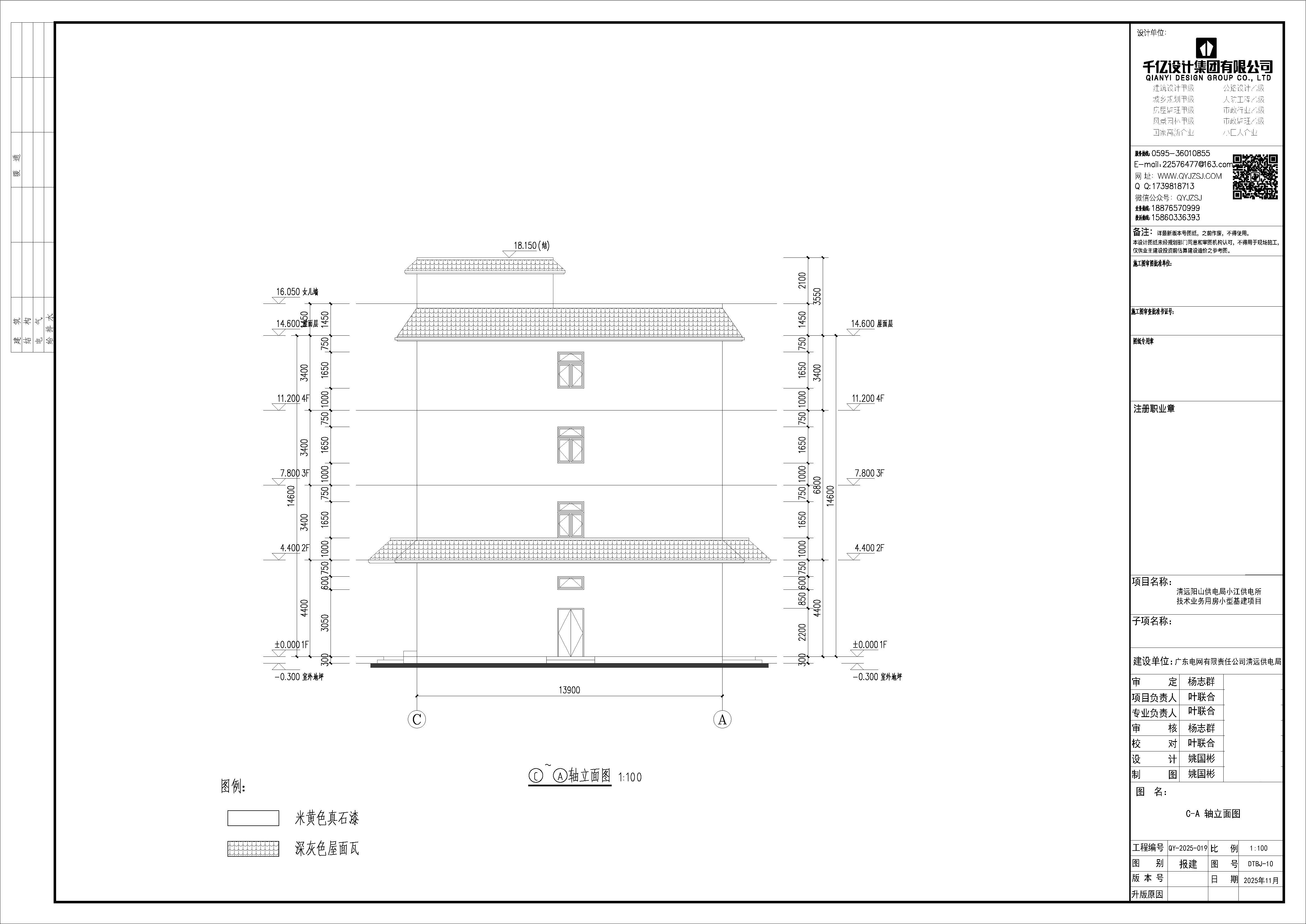
一、项目位置及项目概况:用地位于阳山县小江镇振兴大街51号,用地面积878平方米,总建筑面积1195.48平方米,建筑层数地上4层。建筑高度16.35米,建筑基底面积291.9平方米。(详见附图)
二、项目内容:清远阳山供电局小江供电所技术业务用房小型基建项目
三、公示时间:自公示贴出之日起至规划条件核实合格通知书发出之日止
四、公示方式和地点:
1.建设现场;
2.阳山县政府门户网(http://www.yangshan.gov.cn)。
阳山县自然资源局
2026年2月4日
附图:









扫码关注官方公众号
移动门户