邓聚笑申请办理建设工程规划报批手续批后公告
我局收到邓聚笑提出的办理建设工程规划报批手续申请及相关材料。经审查,项目符合要求,我局原则同意批出。现根据《中华人民共和国城乡规划法》、《广东省城乡规划条例》的有关规定,对该项目报批方案进行批后公告。
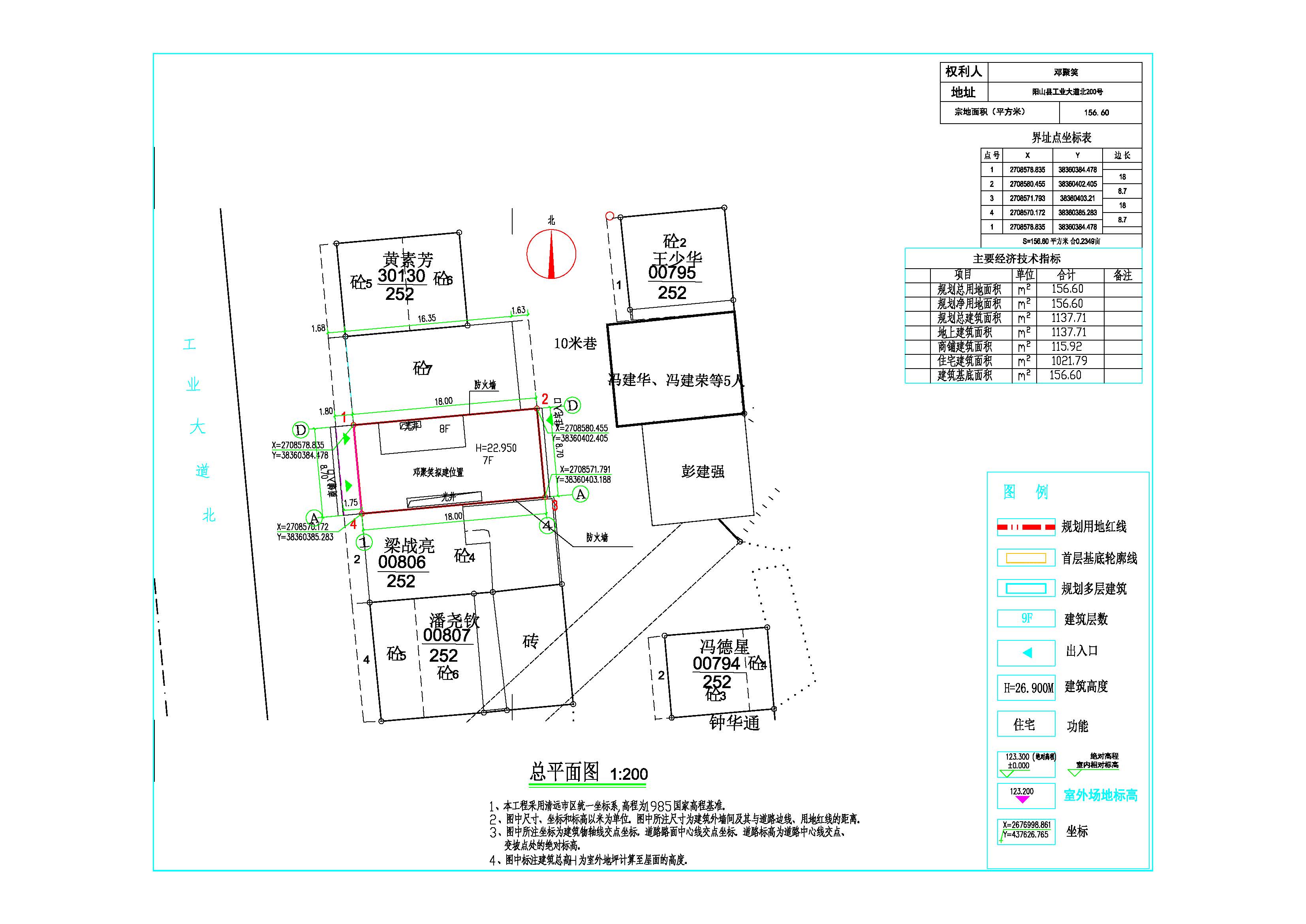
一、项目位置及项目概况:用地位于阳山县阳城镇工业大道200号,用地面积156.6平方米,总建筑面积1137.71平方米,建筑层数地上7层。建筑高度22.95米,建筑基底面积156.6平方米。(详见附图)
二、项目内容:邓聚笑工程规划许可报批
三、公示时间:自公示贴出之日起至规划条件核实合格通知书发出之日止
四、公示方式和地点:
1.建设现场;
2.阳山县政府门户网(http://www.yangshan.gov.cn)。
阳山县自然资源局
2026年2月4日
附图:





扫码关注官方公众号
移动门户