阳山县阳英新能源科技有限公司申请建设工程规划报批手续批后公告
我局收到阳山县阳英新能源科技有限公司提出的建设工程规划报批手续申请及相关材料。经审查,项目符合要求,我局原则同意批出。现根据《中华人民共和国城乡规划法》、《广东省城乡规划条例》的有关规定,对该项目报批方案进行批后公告。
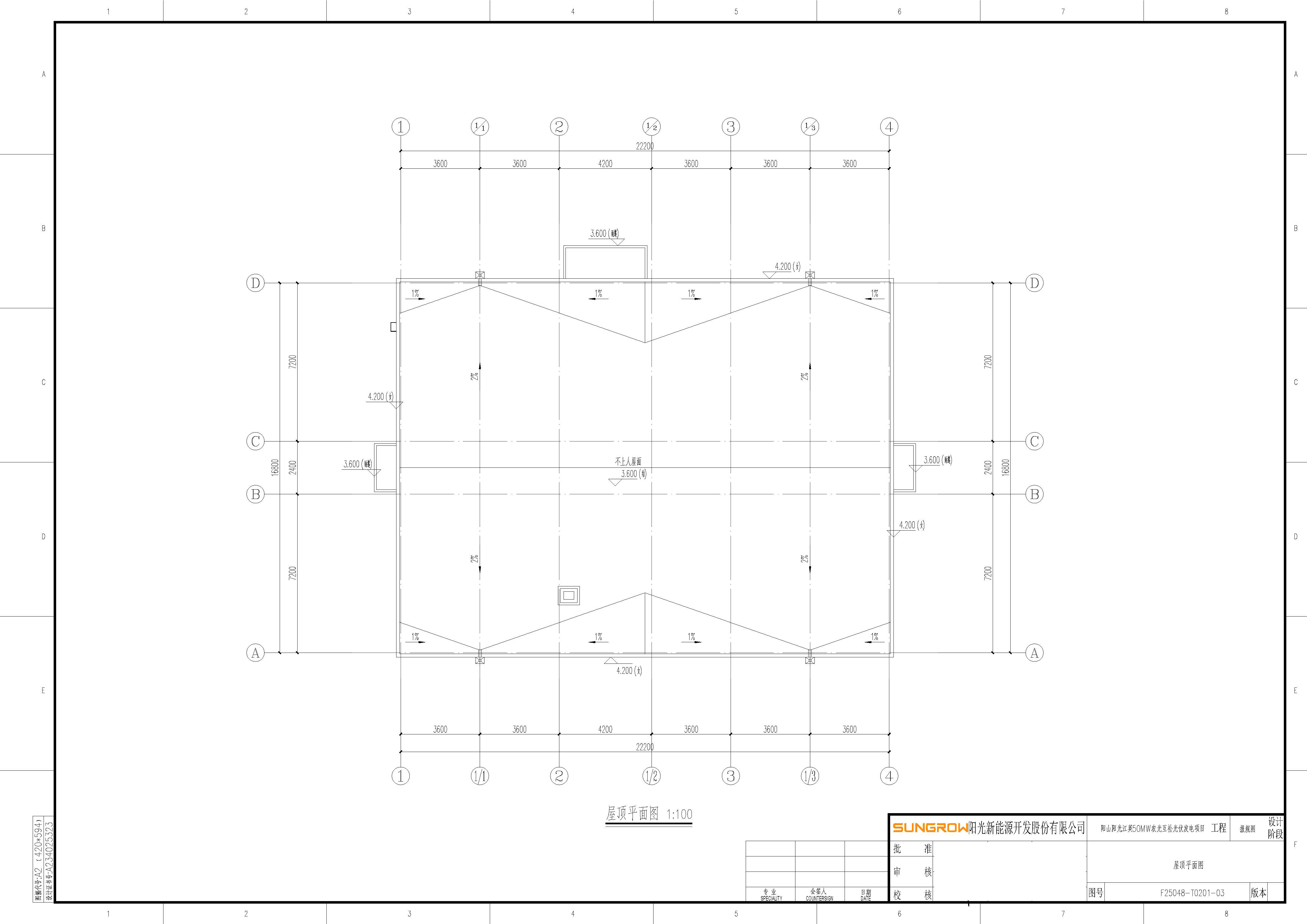
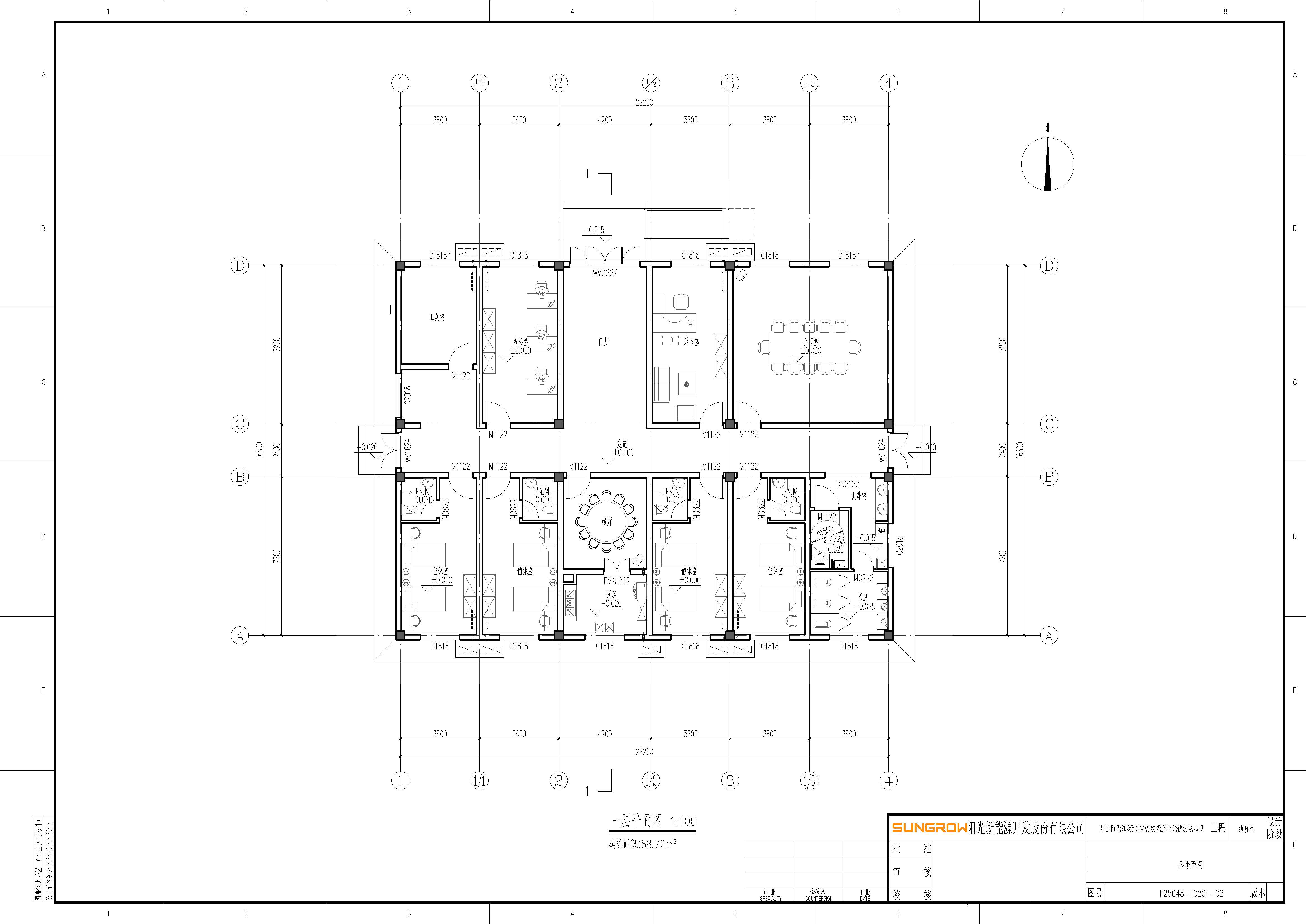
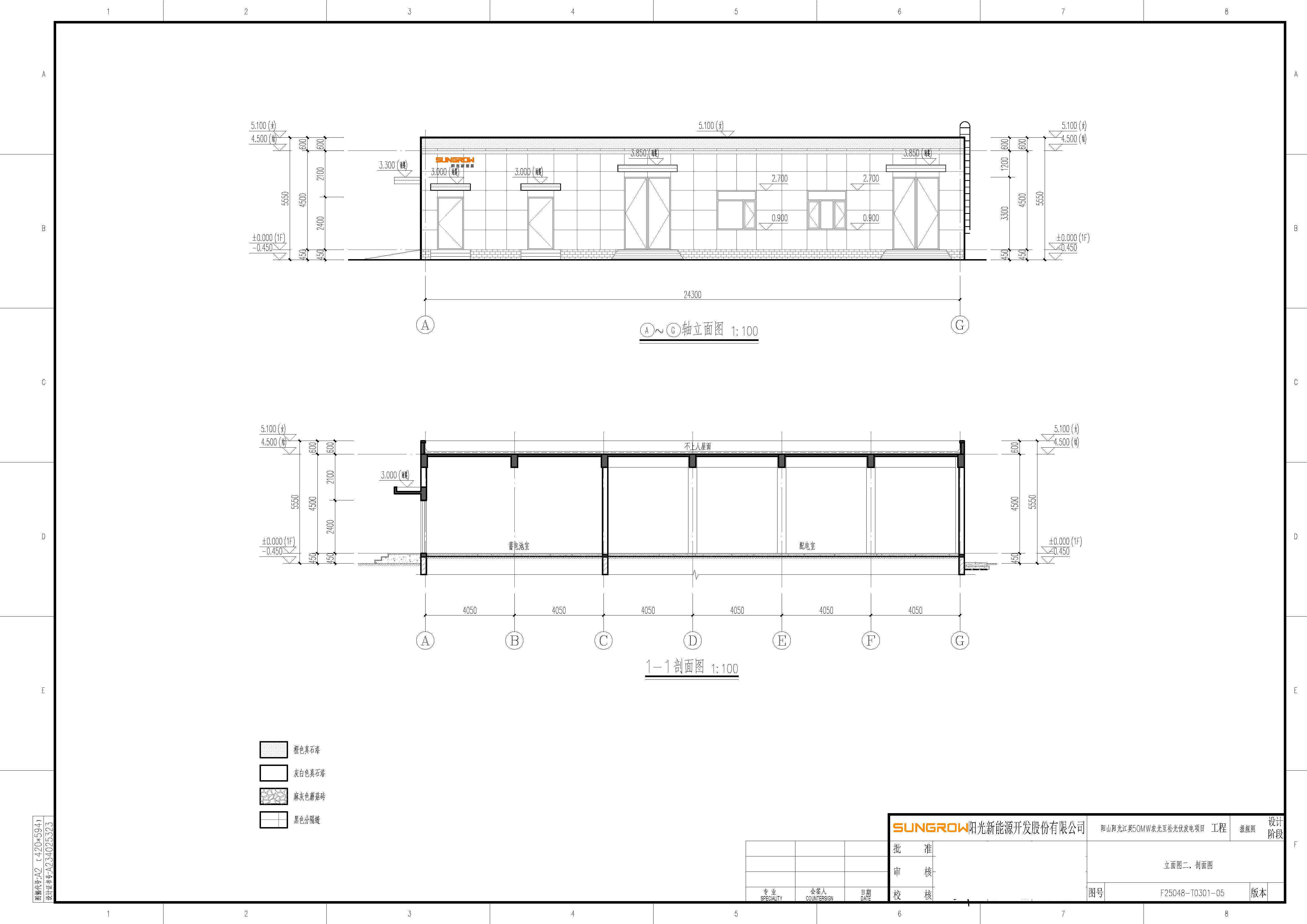
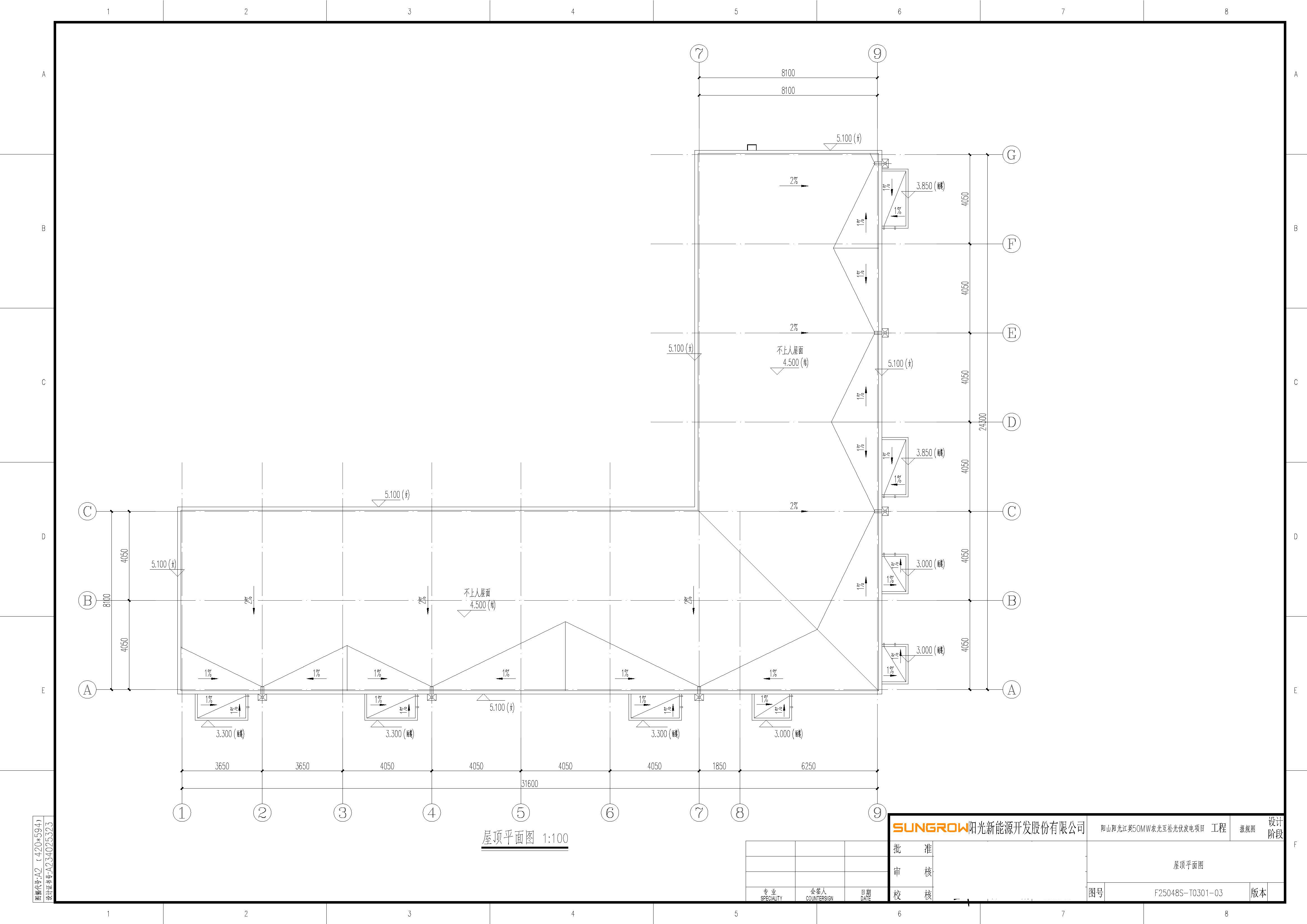
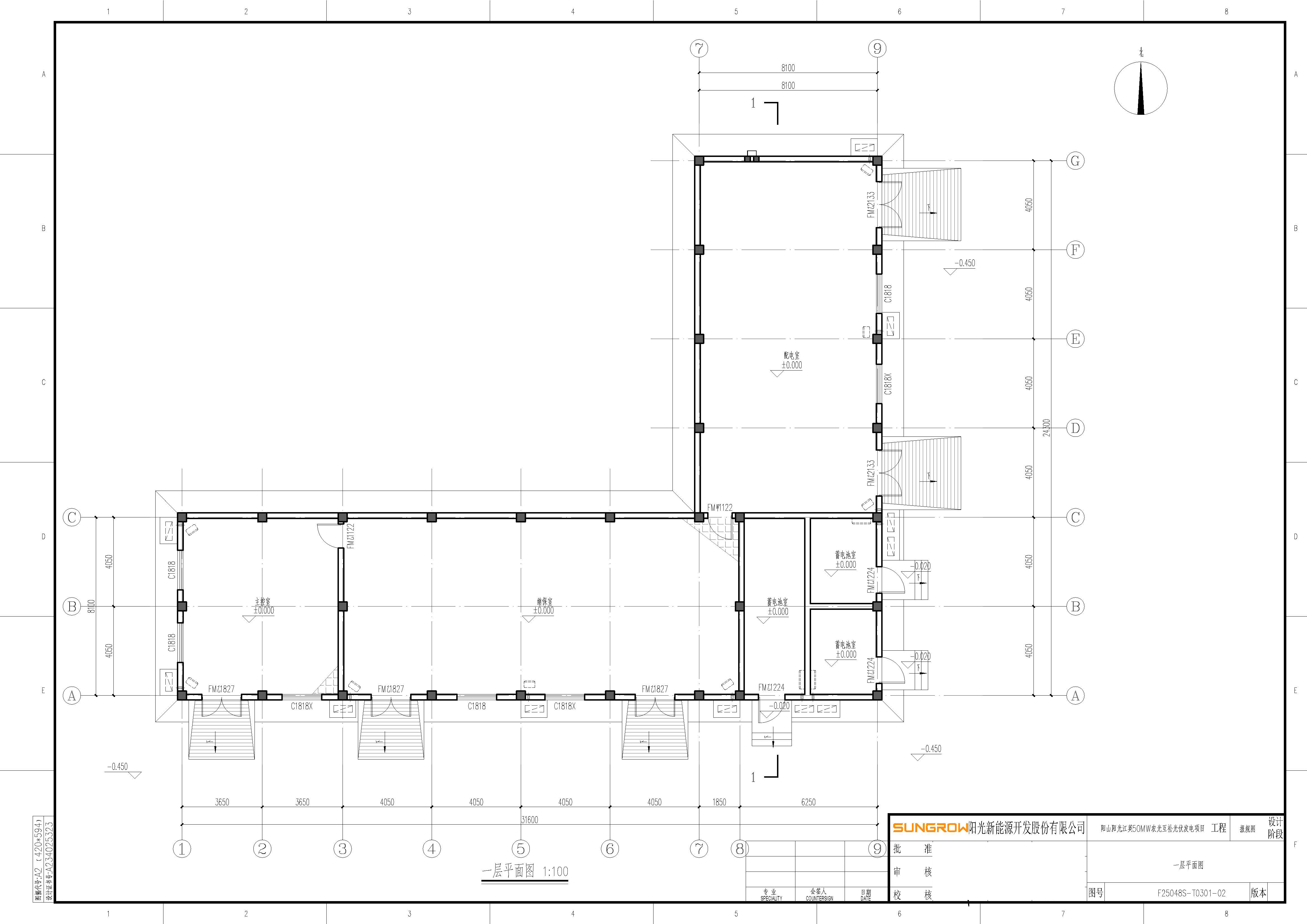
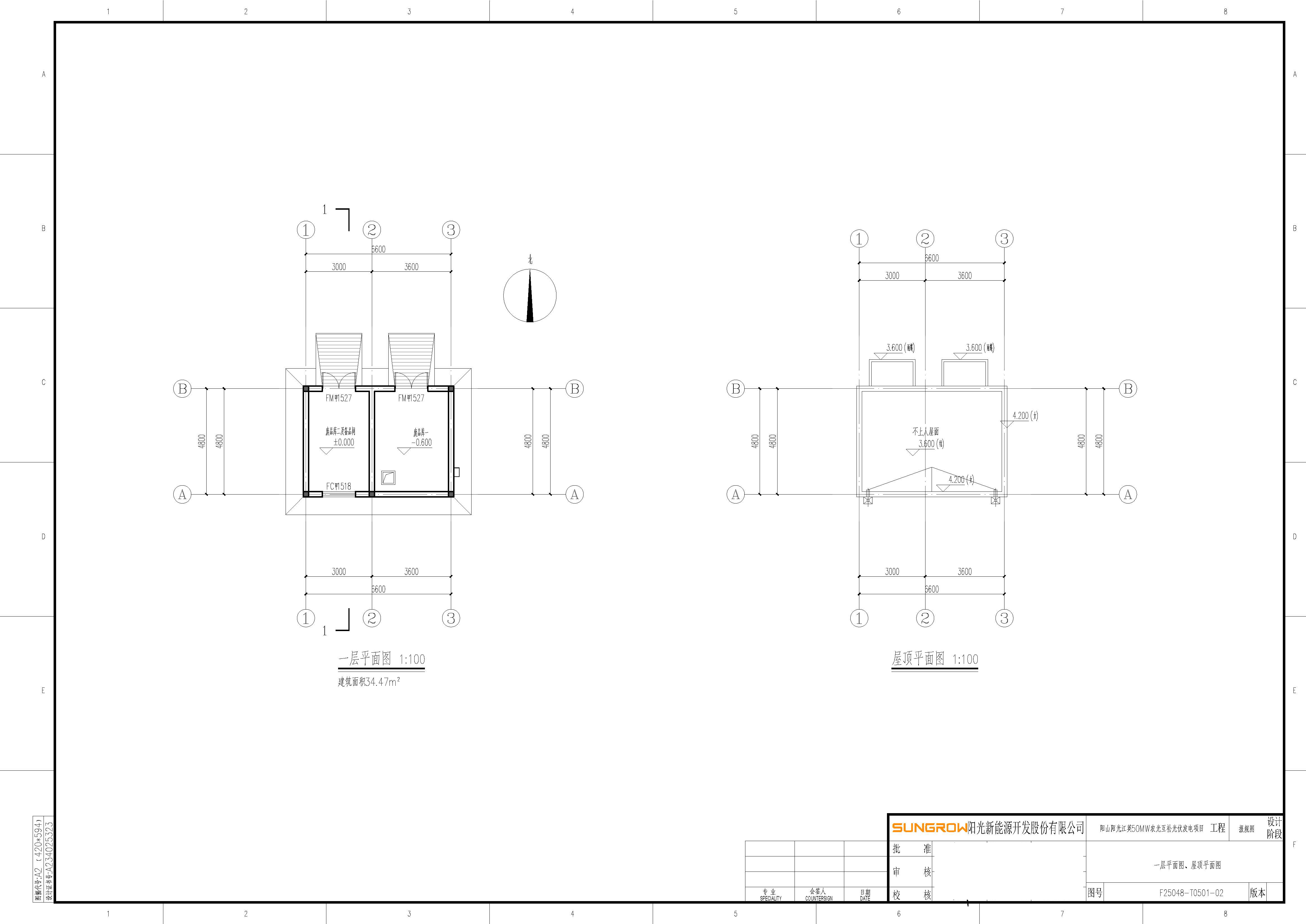
一、项目位置及项目概况:该建设用地位于阳山县江英镇大桥村,用地性质公用设施用地,用地面积为8680.94平方米。拟建一栋综合楼、一栋辅助用房、一栋配电用房,总建筑面积832.89平方米。其中:综合楼建筑面积388.72平方米,基底面积388.72平方米,地上1层,建筑高度4.5米;配电用房建筑面积409.7平方米,基底面积409.7平方米,地上1层,建筑高度5.55米;辅助用房建筑面积34.47平方米,基底面积34.47平方米,地上1层,建筑高度4.5米(详见附图)。
二、项目内容:阳山阳光江英50MW农光互补光伏发电项目工程
三、公示时间:自公示贴出之日起至规划条件核实合格通知书发出之日止
四、公示方式和地点:
1.建设现场;
2.阳山县政府门户网(http://www.yangshan.gov.cn)。
阳山县自然资源局
2025年12月24日
附图:









扫码关注官方公众号
移动门户