陈剑锋等业主申请建设工程规划报批手续批后公告
我局收到陈剑锋等业主提出的建设工程规划报批手续申请及相关材料。经审查,项目符合要求,我局原则同意批出。现根据《中华人民共和国城乡规划法》、《广东省城乡规划条例》的有关规定,对该项目报批方案进行批后公告。
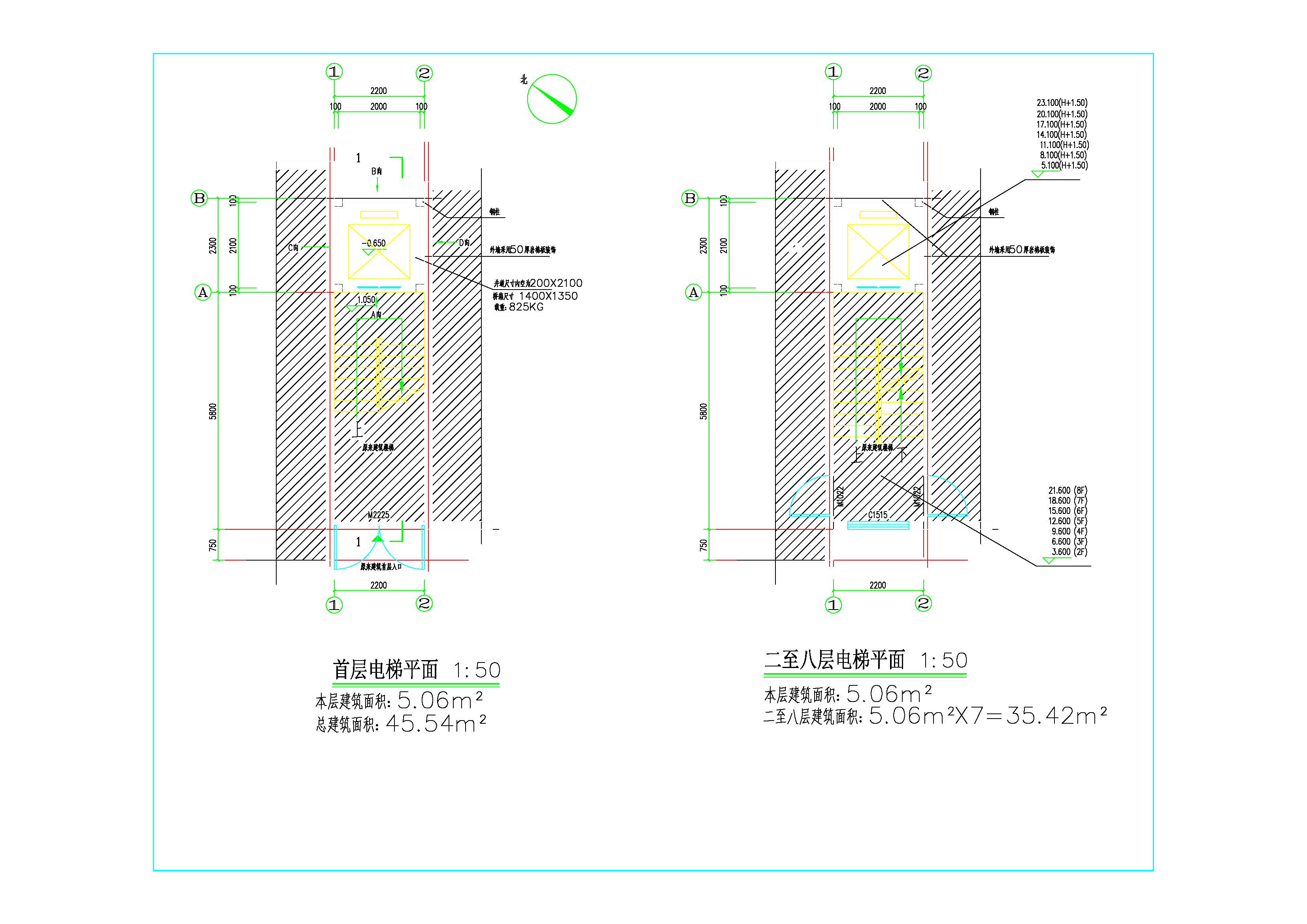
一、项目位置及项目概况:该建设用地位于阳山县阳城镇连江大道163号[朗晴轩]B座1梯。拟加建一台8层电梯,用地面积5.06平方米,首层占地面积5.06㎡,总建筑面积45.54㎡,建筑高度29.25米(详见附图)。
二、项目内容:陈剑锋等业主加装电梯工程
三、公示时间:自公示贴出之日起至规划条件核实合格通知书发出之日止
四、公示方式和地点:
1.建设现场;
2.阳山县政府门户网(http://www.yangshan.gov.cn)。
阳山县自然资源局
2025年12月5日
附图:




扫码关注官方公众号
移动门户