卓艺家居(阳山)有限公司申请建设工程规划报批手续批后公告
我局收到卓艺家居(阳山)有限公司提出的建设工程规划报批手续申请及相关材料。经审查,项目符合要求,我局原则同意批出。现根据《中华人民共和国城乡规划法》、《广东省城乡规划条例》的有关规定,对该项目报批方案进行批后公告。
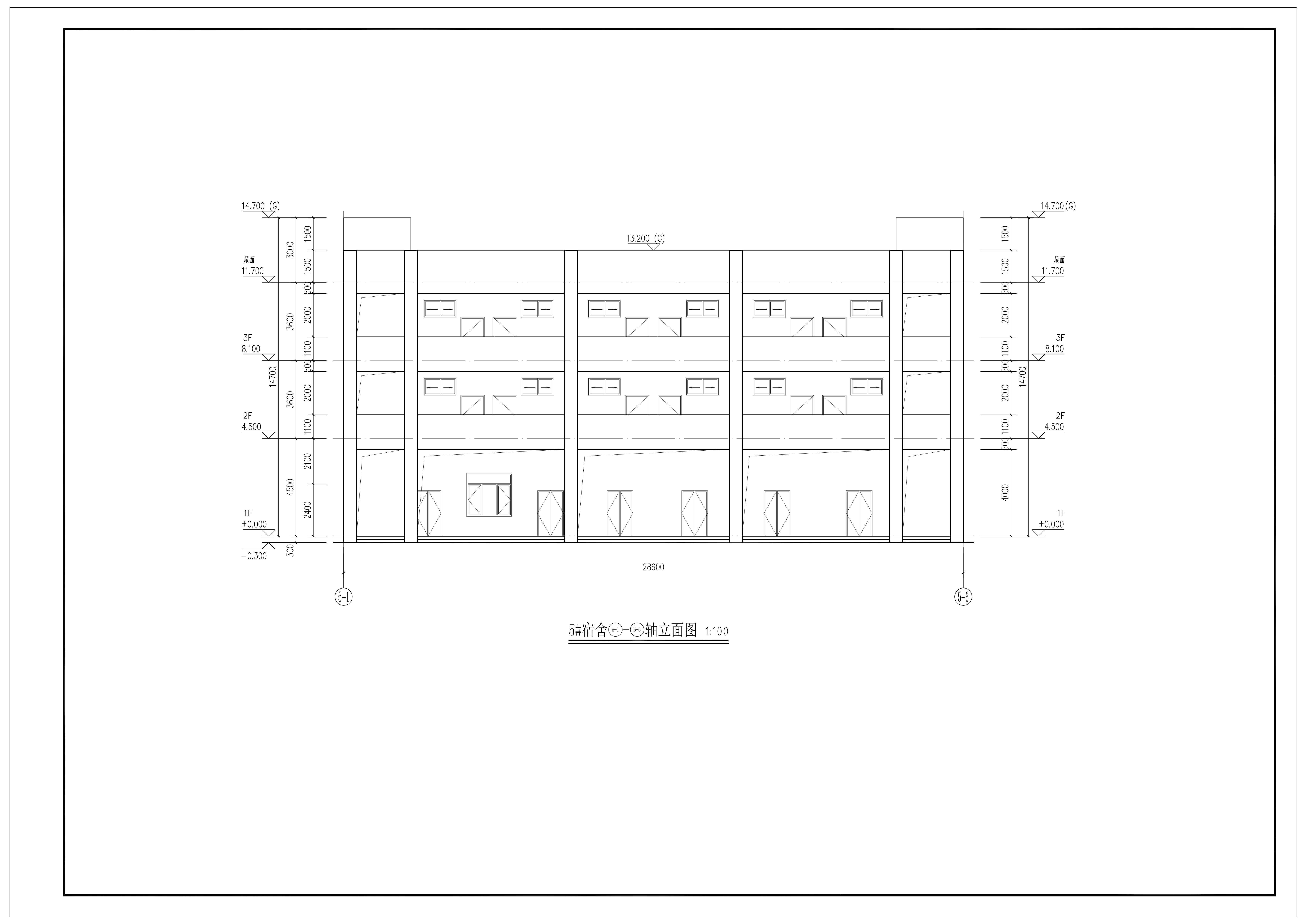
一、项目位置及项目概况:用地位于阳山县七拱镇塘坪村下巷村,用地面积14902㎡,拟建阳山卓艺工厂建设项目,一期拟建1#配电房、3#厂房、5#宿舍。一期总建筑面积8186.72㎡,总计容面积7591.23㎡,不计容面积595.49㎡。
其中1#配电房建筑面积208㎡,计容面积208㎡,建筑层数地上1层,建筑高度5.3m。3#厂房建筑面积7194.75㎡,计容面积6690.60㎡,不计容面积504.15㎡,建筑层数地上3层地下1层,建筑高度20.3m。5#宿舍建筑面积783.97㎡,计容面积692.63㎡,不计容面积91.34㎡,建筑层数地上3层,建筑高度13.5m。(详见附图)
二、项目内容:卓艺家居(阳山)有限公司工程规划许可报批
三、公示时间:自公示贴出之日起至规划条件核实合格通知书发出之日止
四、公示方式和地点:
1.建设现场;
2.阳山县政府门户网(http://www.yangshan.gov.cn)。
阳山县自然资源局
2023年5月17日
附图:

















扫码关注官方公众号
移动门户