广东联采矿业有限公司申请建设工程
规划报批手续批后公告
我局收到广东联采矿业有限公司提出的建设工程规划报批手续申请及相关材料。经审查,项目符合要求,我局原则同意批出。现根据《中华人民共和国城乡规划法》、《广东省城乡规划条例》的有关规定,对该项目报批方案进行批后公告。
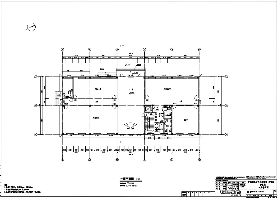
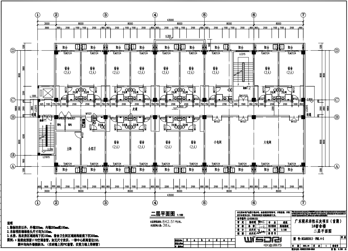
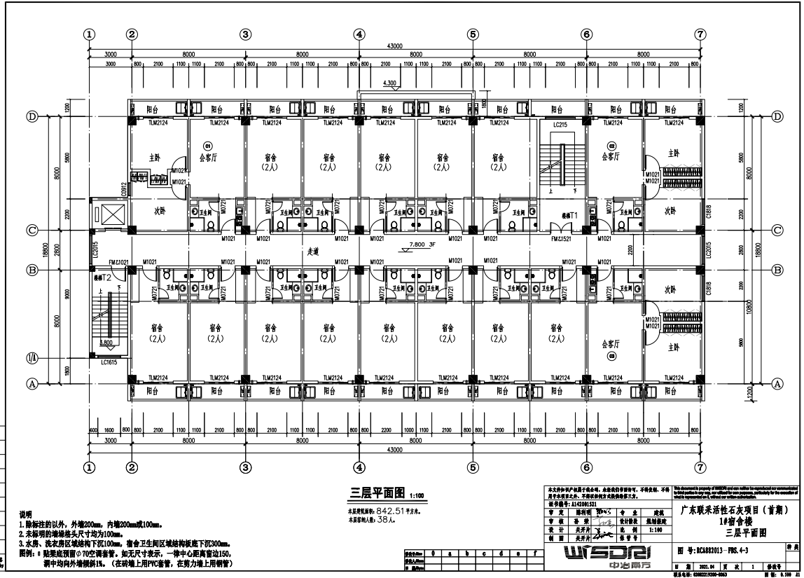
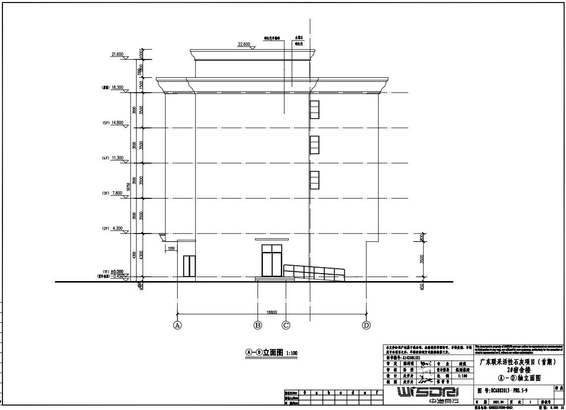
一、项目位置及项目概况(报来方案):用地位于清远市阳山县小江镇石螺村委会988号,项目总用地面积为148936.04 m²,其中可建设用地面积128918.29㎡,山体护坡用地面积20017.75㎡。广东联采活性石灰项目(首期)拟建生产车间3栋、综合电气楼1栋、循环水泵房及空压站1栋、办公楼1栋、研发楼1栋、宿舍楼2栋、门卫房2栋、地磅控制室1栋,总建筑面积38065.48㎡,计容建筑面积61924.76㎡(详情见附图)
二、项目内容:广东联采活性石灰项目(首期)
三、公示时间:自公示贴出之日起至规划条件核实合格通知书发出之日止
四、公示方式和地点:
1.建设现场;
2.阳山县政府门户网(http://www.yangshan.gov.cn)。
阳山县自然资源局
2021年10月21日
附图:


项目位置图 总平面图

效果图
办公楼:






研发楼:






1#宿舍楼:










2#宿舍楼:












1#生产车间:



2#生产车间:



3#生产车间:




综合电气楼:






扫码关注官方公众号
移动门户