阳山阳碧房地产开发有限公司申请设计方案批后公告
我局收到阳山阳碧房地产开发有限公司提出的阳山江滨项目1号楼设计方案申请及相关材料。经审查,项目符合要求,我局原则同意批出。现根据《中华人民共和国城乡规划法》、《广东省城乡规划条例》的有关规定,对该项目报批方案进行批后公告。
一、项目位置及概况:
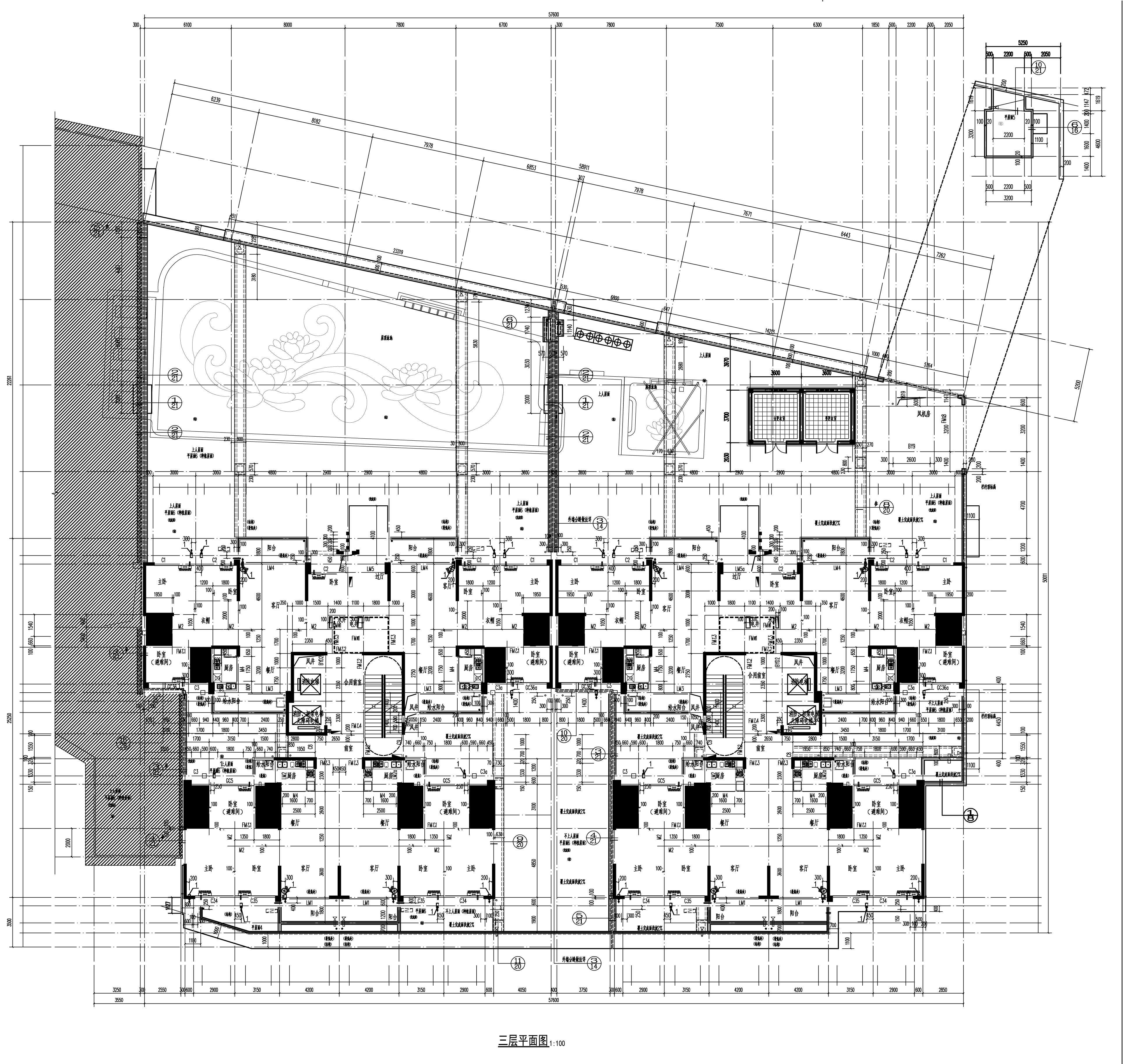
该项目建设用地位于阳山县阳城镇江滨中路1号,用地面积6284.33平方米,用地性质为住宅兼容商服用地。1号楼三层天面拟增加男、女更衣室(公共配套用房),建筑层数1层,建筑面积44.12平方米。(详见附图)
二、项目内容:阳山江滨项目1号楼
三、公示时间:自公示贴出之日起至规划条件核实合格通知书发出之日止
四、公示方式和地点:
1.建设现场;
2.阳山县政府门户网(http://www.yangshan.gov.cn)。
阳山县自然资源局
2020年8月7日
附图:

项目位置

调整前三层平面图

调整后三层平面图
扫码关注官方公众号
移动门户